Friday, January 16, 2026
Home » Bonus Content » PLAN: Popfly

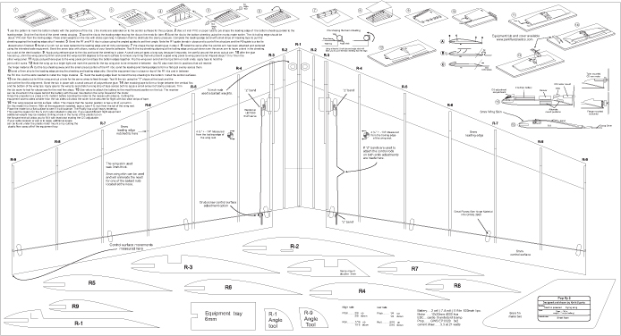
PLAN: Popfly